|
一、 項目說明
轉軸式切板機是一種目前市場上比較新的機型。總體配置如下:一條輸送帶,一個轉軸式切刀,兩臺電機(一臺輸送帶,一臺轉軸切刀),兩個光電(檢測木板用),一個接近開關(安裝在切刀轉軸的側面,用于復位切刀角度以及計數作用),該種機型沒有用到編碼器,速度與長度都是靠兩臺變頻器的頻率控制。轉軸切刀式機型,類似于凸輪結構,刀跟著軸不間斷轉動,實現切割。這種機型的結構簡潔,而且工作效率高。
二、 調試總結
調試過程中遇到的一些問題:
1、頭刀長度無法控制,會出現偏差
主要原因是第一步自診定(即讓切刀轉軸停在規定的位置),當和切刀軸連在一起的鐵塊碰到接近開關時,切刀軸由于速度過快,慣性作用下無法停在制定位置。方法:變頻設置多段數,Y給個點給變頻器,使第一步自診定的速度降低即可
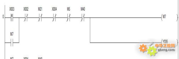
其中M7控制切刀轉動,Y6為多段速輸出點
2、暫停后再啟動,無法繼續之前的動作
這個問題主要是程序上的修改


運用到的是一個判斷,當光電有檢測到板時暫停的情況,以及光電沒有檢測到板時,暫停的情況,以此解決了這個問題
3、切板時,停止后再啟動,切的第一塊板長度偏短2,3cm
這個問題其實和第一個問題類似,也是由于切刀軸停止時,速度過快,電機無法馬上剎死,會多轉一些,再啟動時自然剪出的板會偏短。這個問題主要是機械與變頻器的問題。
還有一個想法是增加一個輸出Y點,做多段速用,即當工作過程中機器暫停后,再讓輸送帶慢速前進一些距離,前進多少要在現場確認,以此來減小這種情況下的誤差。
三、 總結
調試工程中遇到問題時,最重要的是思路要清晰,從而找出問題根源,想方法解決。維控PLC在這類型切板機上的成功運用,為今后PLC在這個行業的深入是有益的。
|